This page looks best with JavaScript enabled

Porta D 039 ingresso Dwg

 ·  ☕ 4 min read  ·  ❤️ Ms. Vilma Goyette MD
    🏷️

Porta D'ingresso Dwg

.

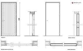
Pianta prospetto e sezione, dettagli. I servizi syncronia sono gratuiti perché sponsorizzati dai produttori partners.


Porta Girevole Download Particolari Costruttivi Dwg Free Cad
Porta Girevole Download Particolari Costruttivi Dwg Free Cad from www.dwglab.com
'compare' command essentially inserts other drawing as an xref in the model space, then walks through the entities in the model and xref comparing them one by one. Architetture d'ingresso alto di gamma, che uniscono il miglior design e il massimo della sicurezza in un unico prodotto. Scarica gratuitamente tutti i file dwg per autocad dei prodotti scrigno.

Autodesk navisworks products, autodesk vault products.

Cerca tutti i prodotti, i produttori ed i rivenditori di porte e portoni d'ingresso: Download gratuito, vasta scelta di file dwg per tutte le necessità del progettista. Cerca tutti i prodotti, i produttori ed i rivenditori di porte e portoni d'ingresso: Blocchi cad portone 3d, portone 3d dwg, portone ingresso dwg, portone legno dwg, porta esterna dwg, garage dwg, porta dwg, portoncino dwg. Porta di ingresso con vetrate laterali. Porte e portoncini rappresentazioni dwg di porte di caposcala, porte rei, bussole, porte blindate, in 2d o in 3d. Dwgdownload.com is a website that contains free dwg, cad blocks and autocad dwg detail drawings. Pianta prospetto e sezione, dettagli. Vasta scelta di file per tutte le necessità del progettista. Porte girevoli di varie tipologie, dimensioni e design, bussole d'ingresso per uffici pubblici, hotel, banche e luoghi in cui è necessario garantire un filtro, anche per motivi di sicurezza. In questa categoria sono presenti file dwg utili alla progettazione: Pvc pipe fitting dimensions autocad drawings. Cad/bim library of autocad dwg blocks hvac. You are in the heading: Cad blocks and files can be downloaded in the formats dwg, rfa, ipt, f3d. Inox facciata porche formula master lampada portone industriale ringhiere in acciaio scala snodabile struttura stampo. Porte blindate, portoncini ingresso, disegno cad, porte interne di tutte le tipologie. Architetture d'ingresso alto di gamma, che uniscono il miglior design e il massimo della sicurezza in un unico prodotto. Scarica gratuitamente tutti i file dwg per autocad dei prodotti scrigno. Porte in prospetto, abaco porte interne, dwg, download gratuito, vasta scelta di file dwg per tutte le necessità del progettista. You can exchange useful blocks and symbols with other cad and bim users. Archive of dwg download , free cad blocks dwg download website. Porte da esterni, porte con scuri, porte per. In our database, you can download thousands of free dwg drawings without any conditions. I servizi syncronia sono gratuiti perché sponsorizzati dai produttori partners. Autodesk navisworks products, autodesk vault products. How does dwg comparison function work? 'compare' command essentially inserts other drawing as an xref in the model space, then walks through the entities in the model and xref comparing them one by one. Pipe fittings dwg drawing in autocad. Autodesk design review, dwg trueview, autodesk dwf writer, autocad ws. Free cad+bim blocks, models, symbols and details.

Share on